Motorcycle Touring Racks and Cases
My wife and I spent three years planning a long overland motorcycle trip through Western Europe and West Africa. Having completed a two week test trip through Denmark, Sweden, and Norway the summer before our scheduled trip, we knew that we needed to carry more tools and gear if we were going to travel for 12 weeks and almost 12,000km from Denmark to Ghana. The European model KLR650’s we were riding didn’t have much aftermarket support in terms of touring gear, so I decided to make my own sets of touring racks and cases for the trip.
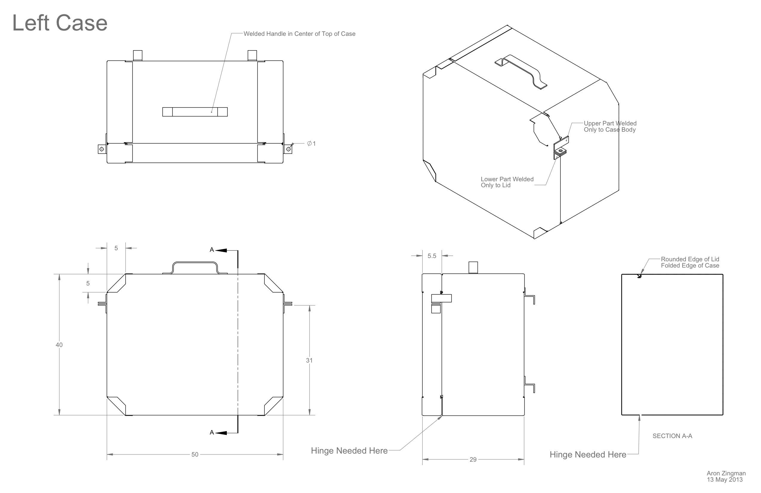
Inspired by luggage racks I had seen on a Royal Enfield while traveling in India, I designed a rack system and lockable sheet metal cases to go with it. The cases held all our gear and the racks held our cases along with water and a 20L fuel can (for the long stretches with unreliable access to fuel). I modeled the racks using solid modeling techniques and the cases using sheet metal modeling techniques in SolidWorks and then sent the drawings and models to Danico, a metal fabricator in Ukraine. The stainless steel cases were delivered to my father’s house in Denmark where we mounted them to the bikes before our trip. The racks and cases performed flawlessly on the trip, surviving rain, dust, and a few spills along the way.














